Karvinsko – Individuální projekt
Další montovanou dřevostavbu budeme stavět v obci s bohatou historií, která byla založena v 15 st. Jedná se o individuální rodinný dům, který si investoři sami vymysleli. Před domem bude kryté garážové stání a za domem – v klidové zóně – bude krytá terasa přes celou šíři domu. Tento bungalov má dispozici 3+kk s bohatým příslušenstvím. V tomto případě si klienti sami zajišťovali stavební povolení. Základovou desku jsme zajišťovali my. RD se nachází v poklidné rezidenční čtvrti. Montáž horní stavby proběhla dle plánu 10. března. Fotografie z průběhu stavby budeme přikládat ZDE.
Podívejte se, co jsme už postavili
Individuální rodinný dům s jedinečnými výhledy – Jeseníky
Tento atypický bungalov s jedinečnými výhledy vyrostl na hranici CHKO Jeseníky. Investorka má ze svého domu panoramatický výhled na okolní hory. Svůj vztah k dřevostavbám si vytvořila během svého delšího pobytu v Severní Evropě. Jedná se o atypickou montovanou dřevostavbu (Dispozice 4+kk) se sedlovou střechou, která je částečně obložena dřevem. Tento rodinný dům je hodně světlý a vzdušný. Projekt vznikl v našem projekčním oddělení. Půdorys a pohledy – viz fotogalerie. Klientka nedávno (8/2024) velmi ocenila náš profesionální přístup a celkově bezproblémový průběh celé stavby.
CHKO Jeseníky – Bungalov 10 s nařízenými změnami v projektu
Tuto montovanou dřevostavbu jsme postavili v nádherné krajině CHKO Jeseníky, v lokalitě známé svým výskytem vzácných rostlin (Orchidea: Pětiprstka žežulník ve fotogalerii.). Jedná se o náš typový projekt Bungalov 10 se změnami, které si vyžádala správa CHKO (např. typ a sklon střechy). Investoři si objednali RD na klíč, vč. základové desky a přípojek. Tento rodinný dům má dispozici 4+1. Bungalov je bezbariérový a bude mít menší krytou terasu. Stavbu jsme museli v důsledku katastrofálních povodní v září 2024 přerušit. Rodinný dům jsme klientům před časem předali. Investoři nám za naši práci velmi poděkovali (6/2025)
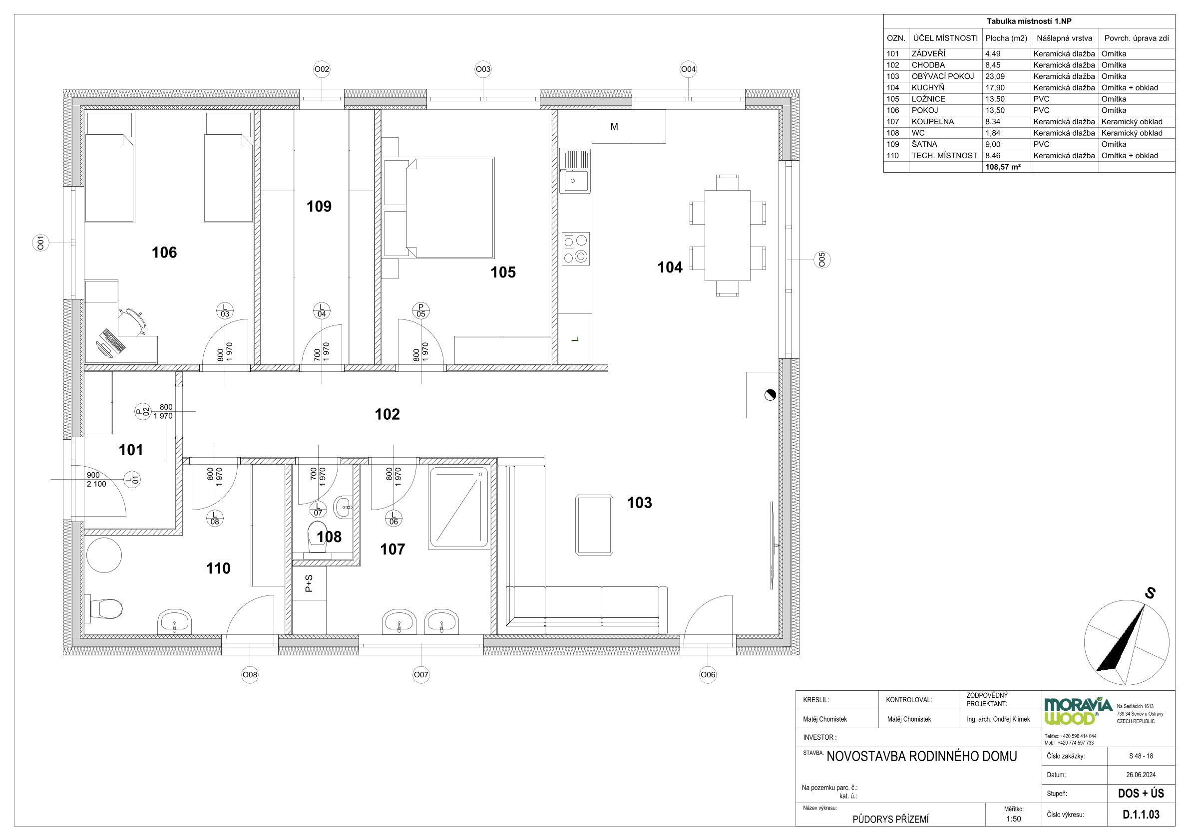
Atypický bungalov moderního střihu – Frýdecko-Místecko
Tento atypický bungalov moderního střihu jsme postavili na základě doporučení nezávislé expertní instituce, které investorka dostala! Jedná se o atypickou montovanou dřevostavbu s plochou střechou a atikou (Dispozice 3+1, užitná plocha necelých 80m².). Navíc, přímo z rodinného domu je vidět dominanta Beskyd – Lysá hora. A v docházkové vzdálenosti vede turistická značka z Frýdku kolem Žermanické a Těrlické přehrady až do Polska. Realizace na klíč v roce 2023. Pohledy rodinného domu – viz fotogalerie. Investoři byli s námi velmi spokojeni. (Pavlína Š. – 11/2023)


