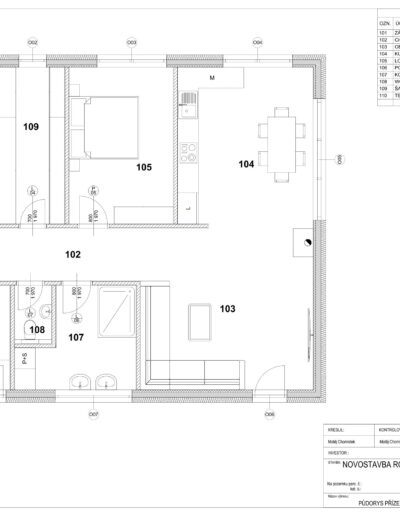
Karvinsko – Individuální projekt

Tato montovaná dřevostavba vyrůstá v poklidné rezidenční čtvrti obce s bohatou historií. Jedná se o individuální rodinný dům, který si investoři sami vymysleli. Tento bungalov má dispozici 3+kk s bohatým příslušenstvím. (Půdorys a pohledy domu ve Fotogalerii) Před domem bude kryté garážové stání propojené s domem a v klidové zóně za domem bude krytá terasa přes celou šíři domu. Investoři si sami zajišťovali stavební povolení. Základovou desku jsme stavěli my.
Toto je individuální montovaná dřevostavba
Načerpejte inspiraci pro svůj individuální projekt v našich typových projektech.
Reference dokončených montovaných domů
Individuální rodinný dům s jedinečnými výhledy – Jeseníky
Tento atypický bungalov s jedinečnými výhledy vyrostl na hranici CHKO Jeseníky. Investorka má ze svého domu panoramatický výhled na okolní hory. Svůj vztah k dřevostavbám si vytvořila během svého delšího pobytu v Severní Evropě. Jedná se o atypickou montovanou...
CHKO Jeseníky – Bungalov 10 s nařízenými změnami v projektu
Tuto montovanou dřevostavbu jsme postavili v nádherné krajině CHKO Jeseníky, v lokalitě známé svým výskytem vzácných rostlin (Orchidea: Pětiprstka žežulník ve fotogalerii.). Jedná se o náš typový projekt Bungalov 10 se změnami, které si vyžádala správa CHKO (např. typ...
Atypický bungalov moderního střihu – Frýdecko-Místecko
Tento atypický bungalov moderního střihu jsme postavili na základě doporučení nezávislé expertní instituce, které investorka dostala! Jedná se o atypickou montovanou dřevostavbu s plochou střechou a atikou (Dispozice 3+1, užitná plocha necelých 80m².). Navíc, přímo z...
Individuální rodinný dům (200 m²+) – Frýdecko-Místecko
Velký projekt mladé rodiny (200 m²+). Investor měl v plánu stavět s jinou firmou, ale na základě doporučení přišel s hotovým projektem k nám. Jedná se o atypický bungalov s dispozicí 5+2, vestavěnou garáží a dalším bohatým příslušenstvím. Součástí projektu je i velký...
Bungalov 2B s úpravami na míru – Ostravsko
Jedná se o náš typový projekt Bungalov 2B. Tato montovaná dřevostavba má dispozici 4+kk+bohaté příslušenství. Je to ideální bydlení pro 4člennou rodinu. Investoři si přáli do našeho typového projektu přidat krytou terasu i krytý hlavní vstup do domu. Rádi jsme jim...
Atypický bungalov (Druhý RD v rámci jedné rodiny-po 15 letech) – Karvinsko
Tato montovaná dřevostavba vyrostla ve městě, do kterého (teoreticky) mohl jezdit na pivo už Jan Lucemburský. Je to atypický bungalov s dispozicí 4+kk (půdorys ve fotogalerii), který stojí na kraji rozlehlé louky. Noví majitelé tedy mají krásný výhled do okolí. Jsme...





